Contactez-nous au +33 (0)6 03 81 44 04, par email à info@labotherm.fr ou effectuez votre demande en ligne.

Rechercher
Rechercher
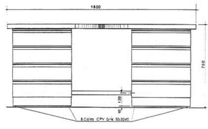
Table-microscope-de-180cm

Table microscope de 1,80 m

Table microscope de 180 cm